Utrechtsestraat 77B
3401 CT IJsselstein / € 1.271,00

Algemene informatie

In hartje binnenstad is dit historische pand gelegen aan hét centrale plein. In 2012 is het gehele pand geheel gerestaureerd en gemoderniseerd, waarbij op de 1e verdieping 2 appartementen en 1 woonstudio nieuw zijn gebouwd. De appartementen en woonstudio hebben een hoog afwerkingsniveau met open luxe keuken en zijn gelegen boven de modewinkel Solange. De statige toegang is in de zijgevel van het pand, rechts naast de ingang van de modewinkel. De 2 appartementen hebben een grote bergvliering over de gehele diepte van het appartement, te bereiken middels een vlizotrap.

Indeling & oppervlakte

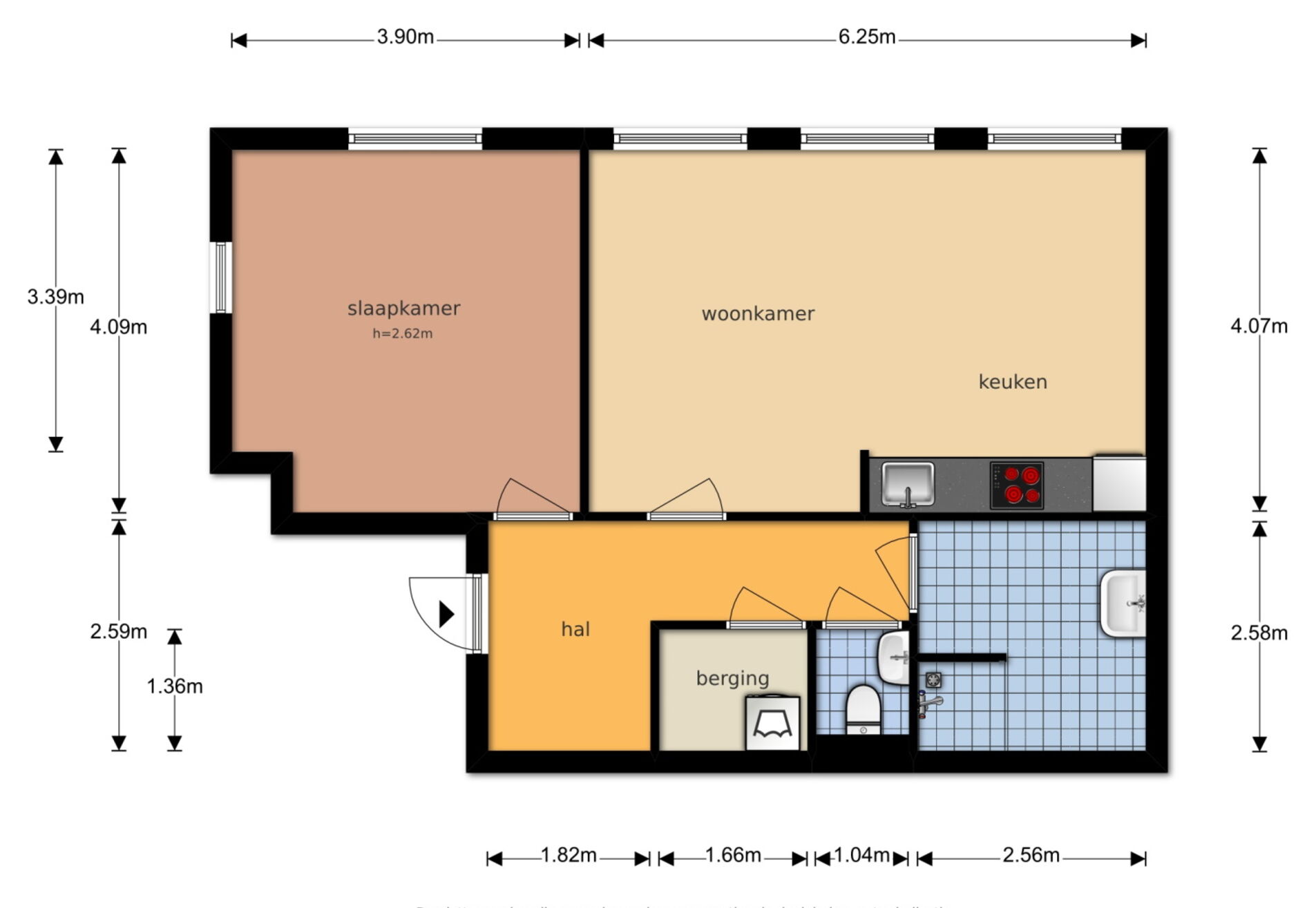
Appartement met entree/hal met aparte toiletruimte, moderne badkamer voorzien van doucheruimte en vaste wastafel. Royale slaapkamer en een woonkamer uitkijkend over IJsselstein’s centrale plein. Alle ruimtes zijn voorzien van draaikiepramen. 

Het appartement is circa 61 m² verdeeld over:

  • entreehal incl. apart toilet en aparte werkkast
  • woonkamer/keuken
  • slaapkamer
  • badkamer incl. wasmachine-opstelling

Daarnaast heeft u tevens beschikking over:

  • ca. 16 m² hoogwaardige gezamenlijke entree en ca. 26 m² gezamenlijke gang op de verdieping
  • grote bergvliering van ca. 89 m² over de gehele diepte van het appartement, te bereiken middels een vlizotrap

Opleveringsniveau, voorzieningen en bijzonderheden

  • Woonkamers en slaapkamers zijn met onderhoudsvriendelijke PVC vloer;
  • Inbouwkeuken voorzien van koelkast met vriesvak, inbouwfornuis, vaatwasser en afzuigkap.
  • Overal dubbel glas;
  • Verwarming en warmwater middels CV;
  • Alle wanden zijn strak gestuukt;
  • Glasvezel aansluiting;
  • Huisdieren zijn niet toegestaan;
  • Geclassificeerd hang- en sluitwerk, rookmelders;
  • Modern appartement met luxe uitstraling;
  • Appartement wordt opgeleverd met luxe basisverlichting.

Parkeren

Middels parkeervergunningen in o.a. parkeergarage Eiteren.

Huurprijs en servicekosten

  • Huurprijs € 1.271,-
  • Servicekosten € 60,- incl. BTW per maand
  • 2 maanden borg vooruit te betalen

Aanvaarding

Per 1 mei 2026.

 

Afmetingen
61 m² wonen
Indeling Appartement
2 bouwlagen 2 kamers 1 slaapkamer

Kenmerken appartement huren in IJsselstein

Afmetingen
Gebruiksoppervlakte wonen
61 m²
Indeling
Aantal bouwlagen
2 bouwlagen
Aantal kamers
2 kamers
Aantal slaapkamers
1 slaapkamer
Bouwlaag
1e verdieping
Aantal woonlagen
1 woonlaag
Overdracht
Huurprijs (€ / mnd)
€ 1.271,00
Servicekosten (€ /mnd)
€ 60,00
Energielabel
Energielabel A